Ref: 6265

Penthouse for sale in MOLENBEEK-SAINT-JEAN

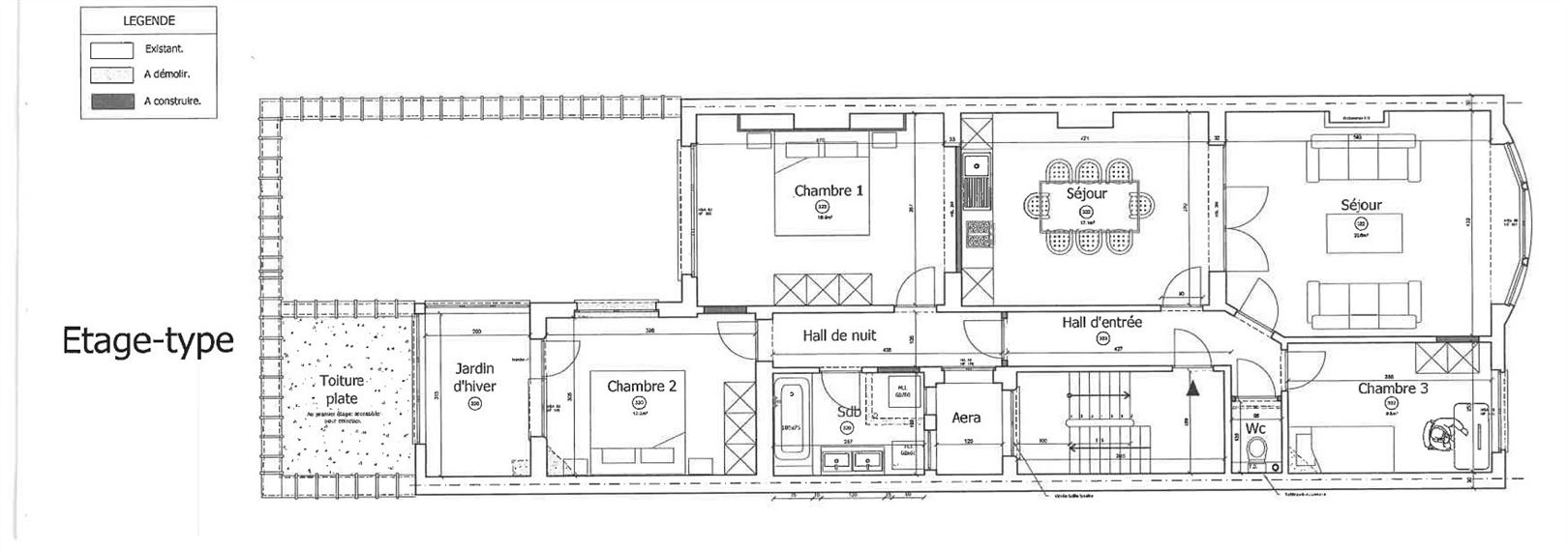
Aperçu

  • Number of bedroom(s): 3
  • Number of bathroom(s): 2
  • Furnished: No
  • Total area: 201m²
  • Living area: 40 m²
  • Front width: 7.35 m
  • Construction year: 1930

Description

MOLENBEEK - RESIDENTIAL NEIGHBORHOOD RUE MELPOMENE - Opposite Parc des Muses - PENTHOUSE 200 m2 FOR SALE CASCO - Duplex flat on the top two floors allowing totally personalised renovation - Description: 3rd floor - Entrance hall - Living room, Dining room in a row - 3 bedrooms - Bathroom - Winter garden - On the 4th floor; 3 attic rooms with a total surface area of +/- 70m². Installation of solar panels (optional). Possibility of terrace +/- 10 m2 on 4th floor Permit in preparation and already accepted for the sister building - Individual meters - PVC double-glazed windows - PEB G - Optional: large cellar of +/- 16 m2: make an offer - Possibility of benefiting from the registration duty allowance for the first €200,000 (subject to conditions). For information and a viewing: Brussels Real Estate & Properties 02/534.24.52 - info@brusselsrealestate.eu

Confort / Equipment

  • Heating: Not communicated
  • Kitchen: Not communicated
  • Window glazing: Double
  • Window frame: pvc

Charges

Energy performance

  • Energy class:

Would you like to visit this property?

"*" indicates required fields

This field is for validation purposes and should be left unchanged.