Ref: 6264

Apartment for sale in MOLENBEEK-SAINT-JEAN

Aperçu

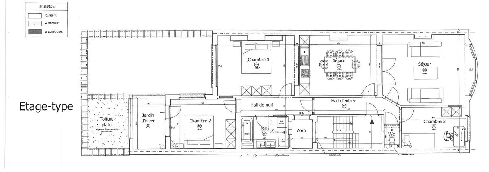
  • Number of bedroom(s): 3
  • Number of bathroom(s): 1
  • Furnished: No
  • Total area: 131m²
  • Living area: 38 m²
  • Front width: 7.35 m
  • Construction year: 1930

Description

MAKE AN OFFER FROM 229.000€ - MOLENBEEK – Residential area, Rue Melpomène, facing the Park des Muses – Great opportunity to acquire a "Casco" apartment of approx. 131 m², located on the 2nd floor of a beautiful 1900 building (concrete structure). Description: entrance hall – living space (approx. 40 m²) composed of a front-facing lounge extended by the dining area and kitchen (see attached floor plan) – 3 bedrooms – 1 bathroom – winter garden – Cellar – Individual meters – PVC double-glazed windows – EPC: D. Possibility to benefit from a reduced registration tax on the first €200,000, subject to conditions. For information and visits: Brussels Real Estate & Properties 📞 02/534.24.52 – ✉️ info@brusselsrealestate.eu

Confort / Equipment

  • Heating: Not communicated
  • Kitchen: Not communicated
  • Window glazing: Double
  • Window frame: pvc

Charges

Energy performance

  • Energy class:

Would you like to visit this property?

"*" indicates required fields

This field is for validation purposes and should be left unchanged.