Option

Ref: 6294

Appartement à vendre à JETTE

Aperçu

  • Nombre de chambre(s): 2
  • Nombre de salle(s) de bain: 1
  • Meublé: Non
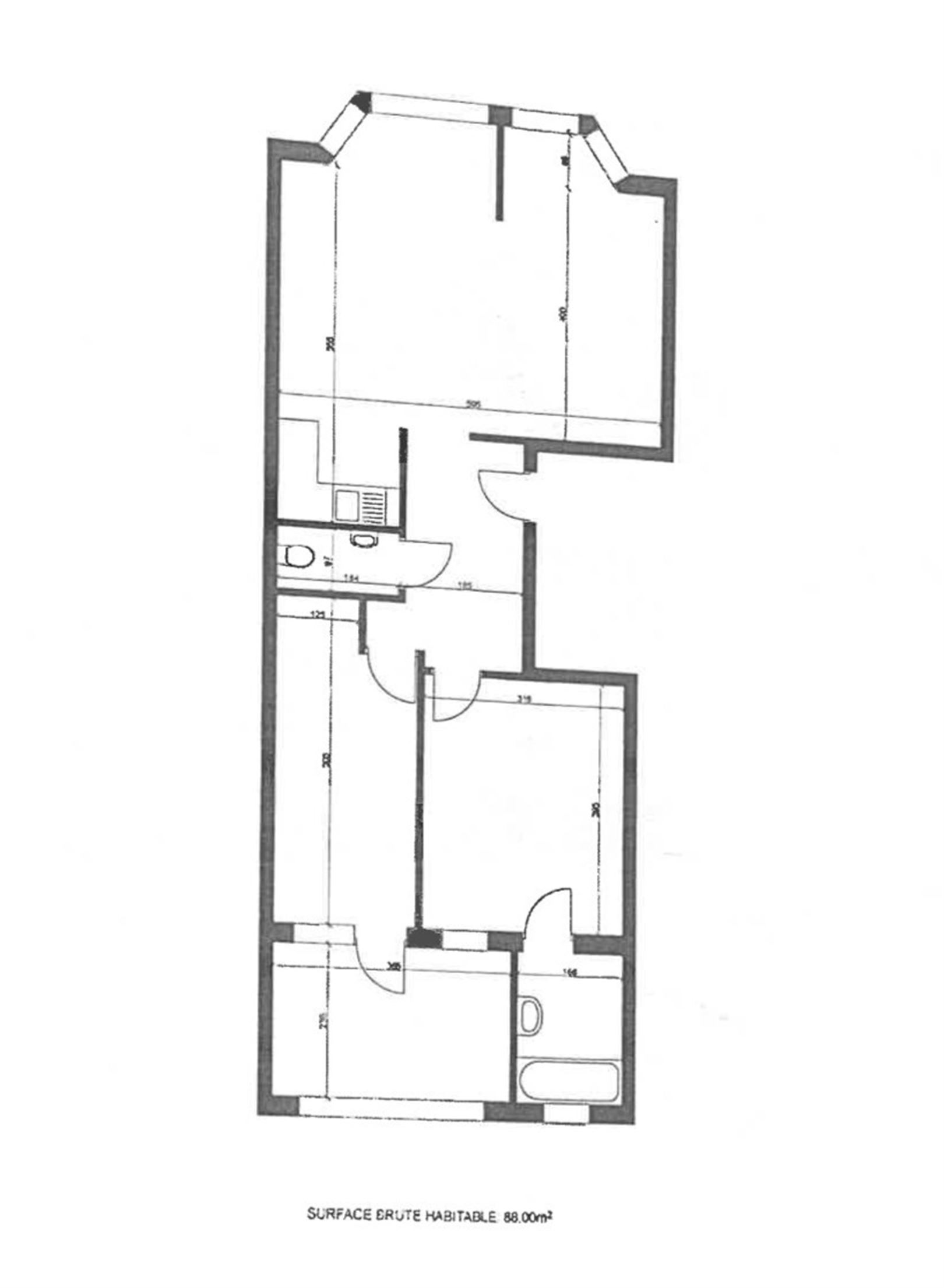
  • Superficie habitable: 90m²
  • Superficie du séjour: 30 m²
  • Largeur de la façade: 6 m
  • Année de construction: 1930

Description

Quartier Stuyvenbergh- Hopital Brugmann - Bvd de Smet de Nayer , A RENOVER au deuxième étage d’un petit immeuble des années 50, un appartement de 2 chambres de +/- 88 m² avec terrasse couverte. Il se compose d’un hall d'entrée - un séjour lumineux de +/- 30 m² avec 2 belles baies vitrées et emplacement de cuisine ouverte- Les deux chambres offrent respectivement des surfaces de 12 m² et 9 m²- Salle de bain - 2 toilettes séparées - Une cave. Les châssis sont en PVC double vitrage- PEB : D. ESPACES COMMUNS A RENOVER. Pour informations et visites : Brussels Real Estate & Properties 📞 02/534.24.52 📧 info@brusselsrealestate.eu

Confort / Equipements

  • Chauffage: C.C. au gaz
  • Cuisine: Pas présent
  • Confort intérieur: parlophone,
  • Vitrage: Double
  • Type de vitrage: pvc

Charges

Certificat energétique

  • Classe énergétique:

Vous souhaitez visiter ce bien ?

Vous souhaitez visiter ce bien? Rien de plus facile, remplissez le formulaire ci-dessous, nous reprendrons contact avec vous.

« * » indique les champs nécessaires

Ce champ n’est utilisé qu’à des fins de validation et devrait rester inchangé.