Ref: 6263

Appartement à vendre à MOLENBEEK-SAINT-JEAN

Aperçu

  • Nombre de chambre(s): 3
  • Nombre de salle(s) de bain: 1
  • Meublé: Non
  • Superficie habitable: 121m²
  • Largeur de la façade: 7.35 m
  • Année de construction: 1930

Description

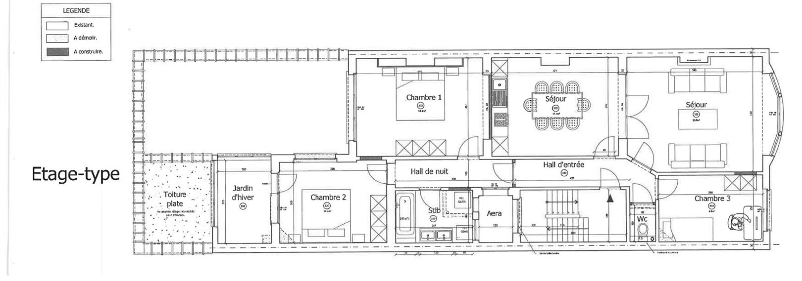
MOLENBEEK –Quartier résidentiel Rue Melpomène face au Parc des Muses– Très belle opportunité d’acquérir un appartement à l' état "Casco" de +/-121 m2, au 1er étage d'un bel immeuble 1900 (structure béton). Description : hall d’entrée- Living (+/-40 m2) réparti sur un salon en façade avant prolongé de l'espace salle à manger avec cuisine (voir suggestion de plan annexée)- 2 chambres + 1 bureau- 1 salle de bain -Jardin d'hive/Terrasse- Cave - Compteurs individuels – Châssis double vitrage en PVC – PEB F - Possibilité de bénéficier de l’abattement sur les droits d’enregistrement pour la première tranche de 200.000 €, sous conditions. Pour informations et visites : Brussels Real Estate & Properties 02/534.24.52 - info@brusselsrealestate.eu

Confort / Equipements

  • Chauffage: Non communiqué
  • Cuisine: Non communiqué
  • Vitrage: Double
  • Type de vitrage: pvc

Charges

Certificat energétique

  • Classe énergétique:

Vous souhaitez visiter ce bien ?

Vous souhaitez visiter ce bien? Rien de plus facile, remplissez le formulaire ci-dessous, nous reprendrons contact avec vous.

« * » indique les champs nécessaires

Ce champ n’est utilisé qu’à des fins de validation et devrait rester inchangé.